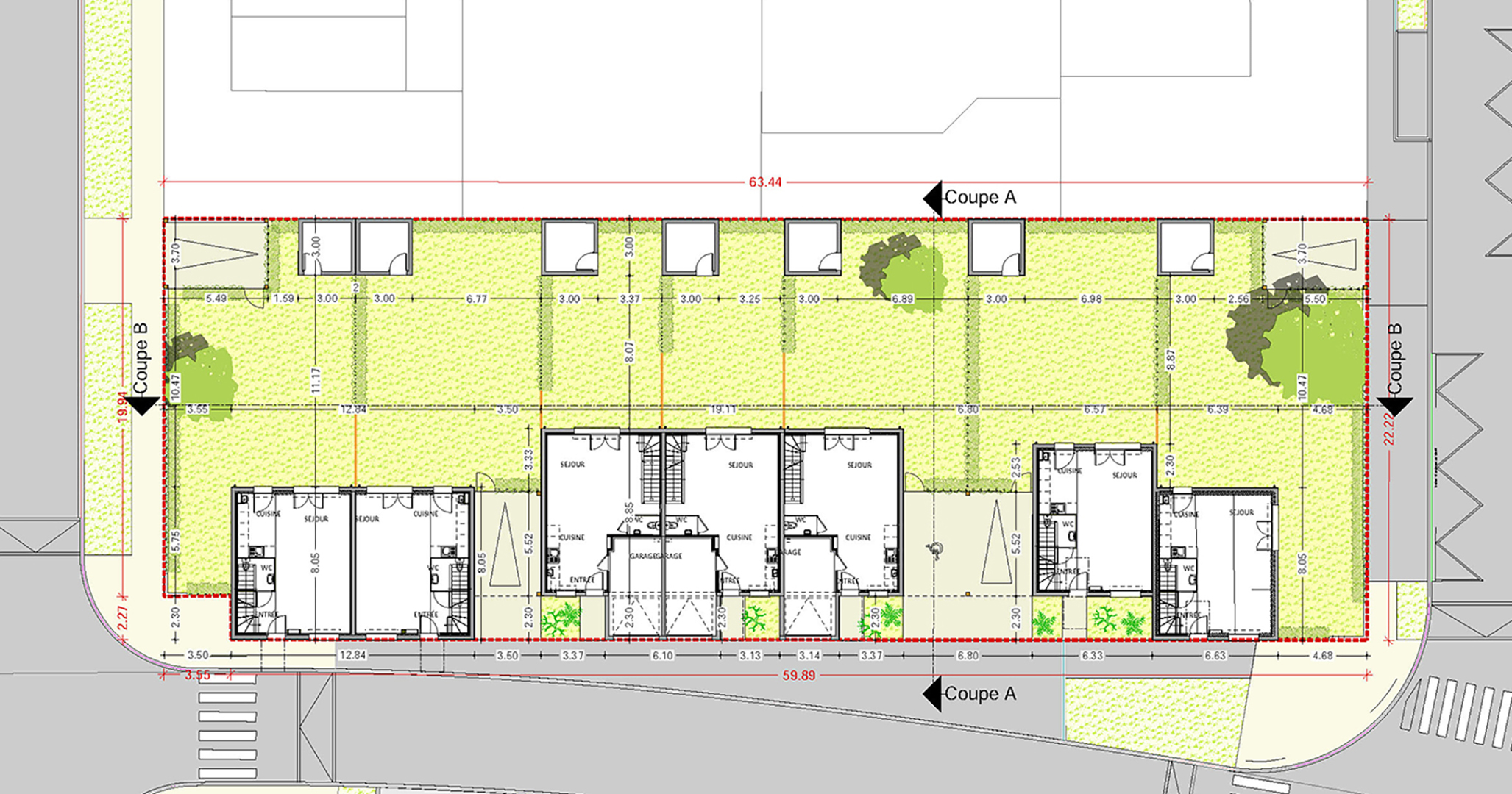
Construction de 31 Logements

Construction de 31 Logements Zac Ribais Pavillon au Mans (20 collectifx + 11 individuels)

Maitre d’Ouvrage: Khor Immo
Mission: PC en cours

MO: Maisons Urbaines
SP 2180 m²
Livraison 2022

Présentation de la confidentialité

Ce site utilise des cookies afin que nous puissions vous offrir la meilleure expérience utilisateur possible. Les informations sur les cookies sont stockées dans votre navigateur et remplissent des fonctions telles que vous reconnaître lorsque vous revenez sur notre site Web et aider notre équipe à comprendre les sections du site Web que vous trouvez les plus intéressantes et utiles.