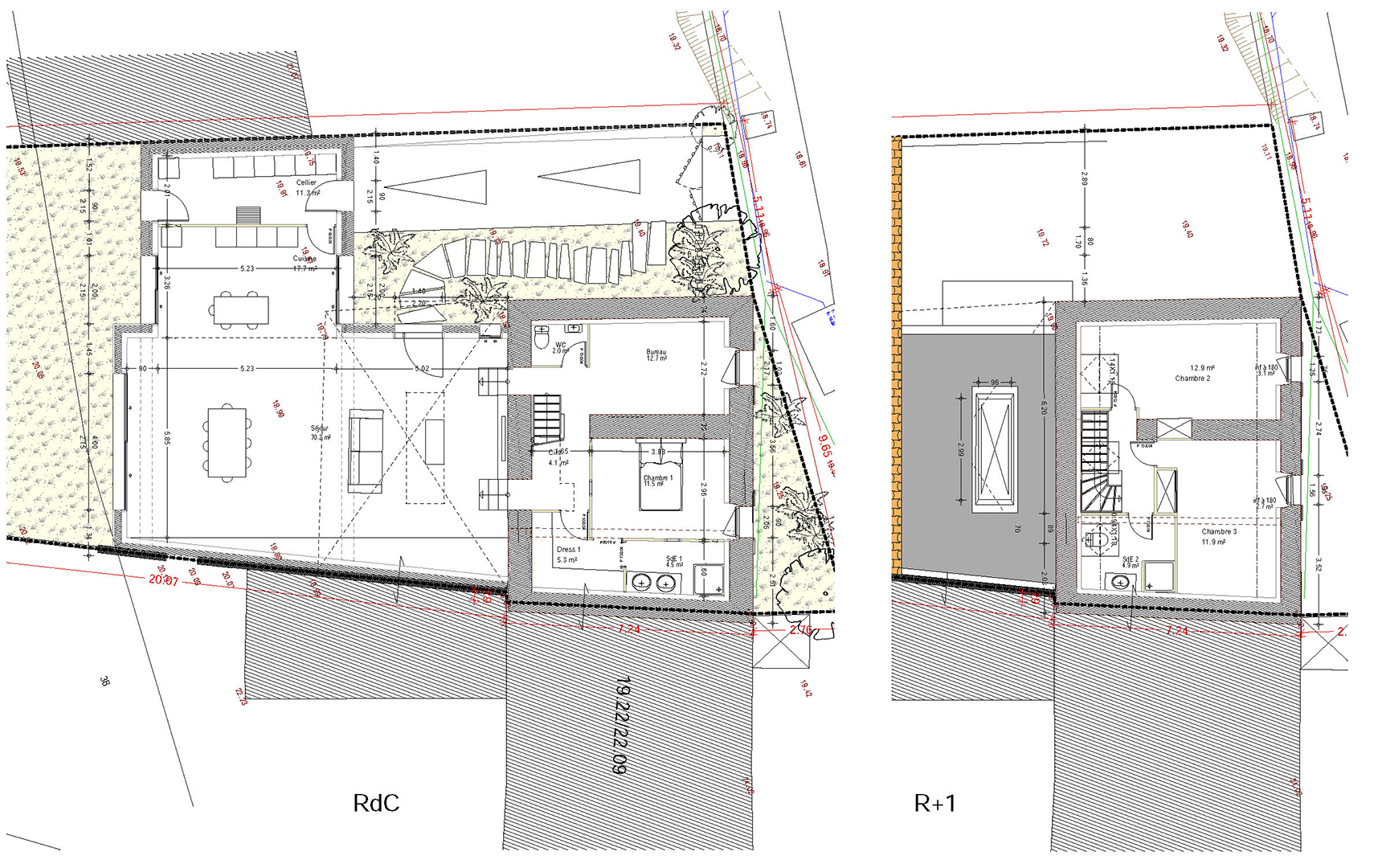
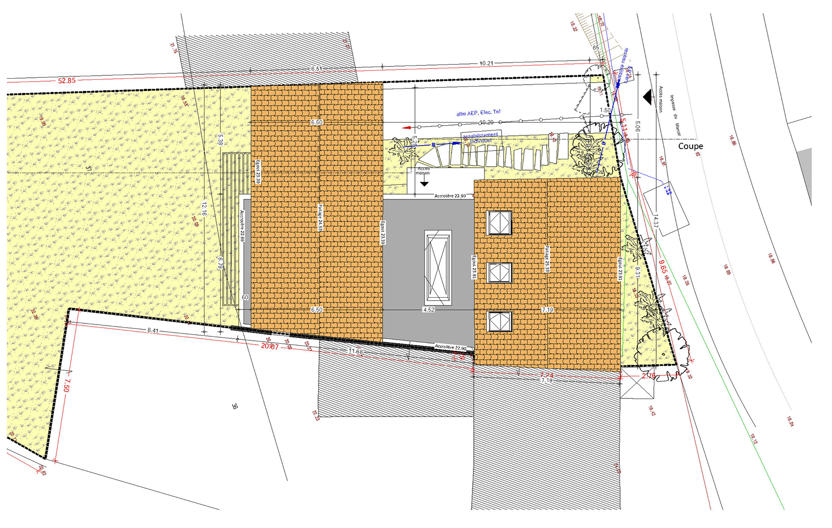
Réhabilitation Extension d'une Cave agricole

Ancienne cave de ferme réhabilité en maison individuelle, Element patrimonial en zone Natura 2000

SHAB 140m²
Livraison 2019

Présentation de la confidentialité

Ce site utilise des cookies afin que nous puissions vous offrir la meilleure expérience utilisateur possible. Les informations sur les cookies sont stockées dans votre navigateur et remplissent des fonctions telles que vous reconnaître lorsque vous revenez sur notre site Web et aider notre équipe à comprendre les sections du site Web que vous trouvez les plus intéressantes et utiles.